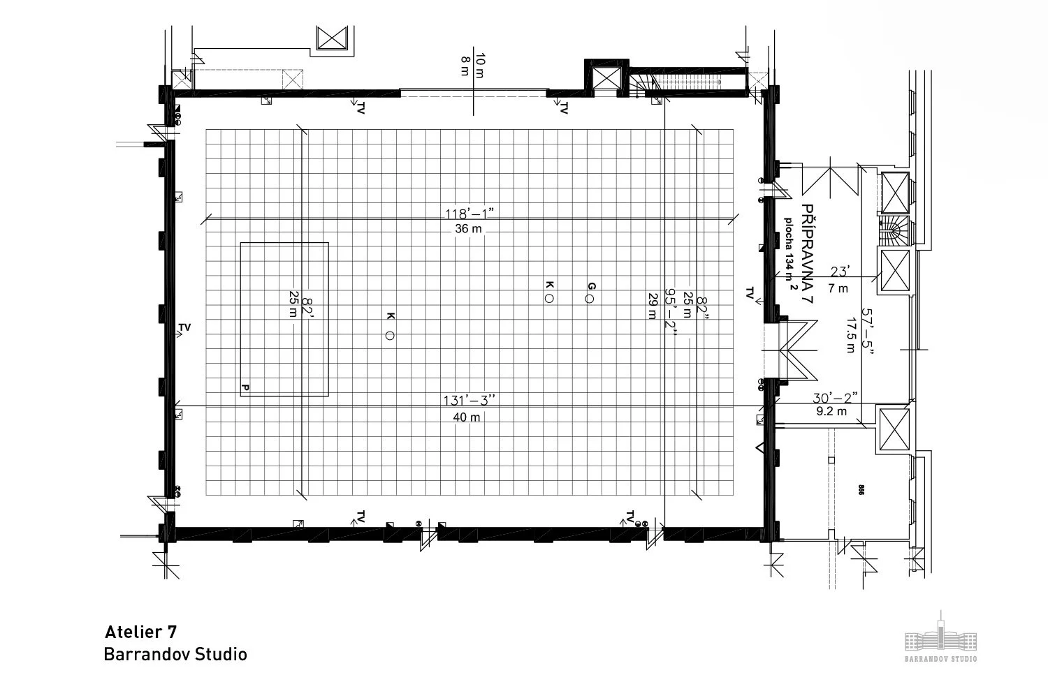
Ateliér 7

Výška

12 m

Celková plocha

29 x 40 m
(1160 m²)

Užitná plocha

25 x 36 m
(900 m²)

Unikátní výsuvné opony umožňují propojení s ateliérem číslo šest. Po vysunutí opony, která dále dělí ateliéry pět a šest, vznikne prostor o délce 130 m.

Součástí zázemí ateliéru jsou velká vjezdová vrata pro technickou manipulaci, dopravu dekorací a vjezd automobilů. Ateliér má také kvalitní technické zázemí (tzv. přípravna) určené zejména pro manipulaci s dekoracemi. Vrátky umožňují zavěšování břemen a dekorací - staticky 300 kg, dynamicky 130 kg.

Nadstandardním prvkem je funkční propadlo – 5 m široké, 10 m dlouhé a 5 m hluboké.

PŮDORYS

Kontaktujte nás


Mgr. Gabriela Kolková

+420 267 073 017
+420 722 971 194
gkolkova@barrandov.cz