Ateliér MAX

Výška

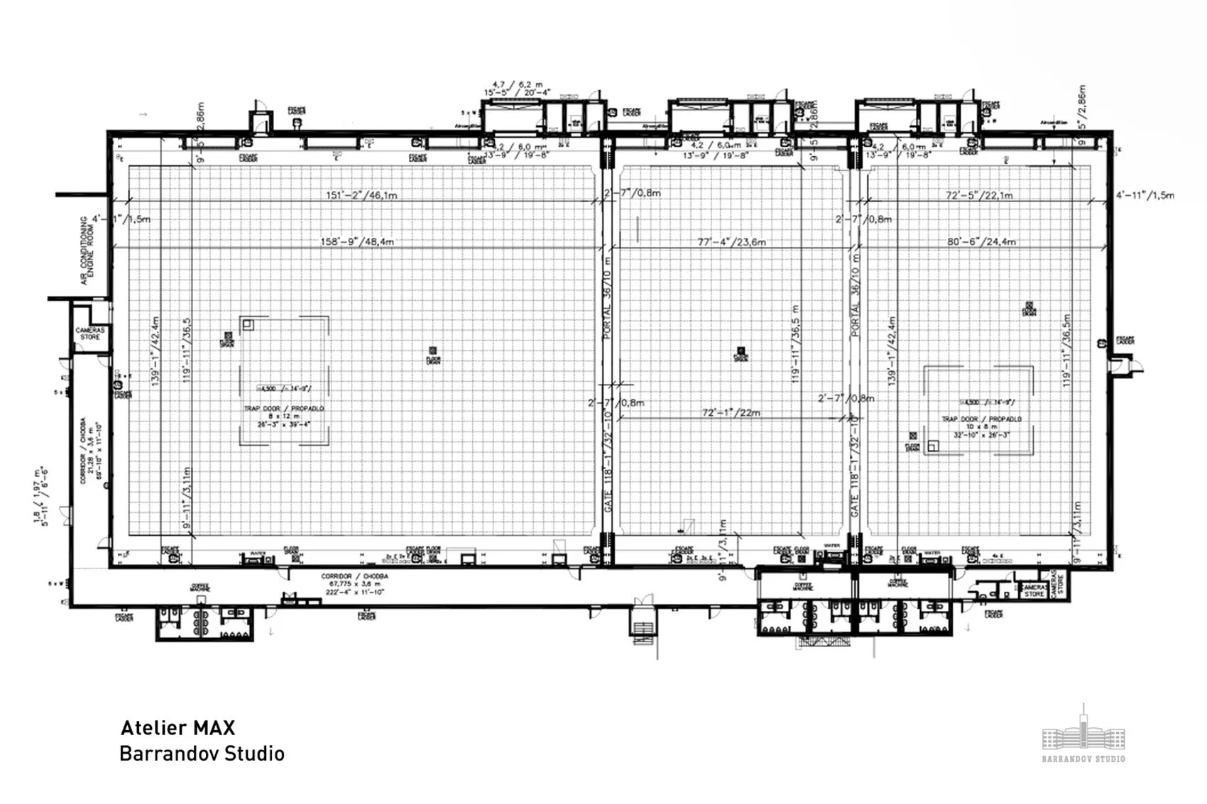
13,75 m

Celková plocha

98,2 x 42,4 m
(4164 m²)

Užitná plocha

95,2 x 36,5 m
(3475 m²)

Spojením ateliérů 8, 9 a 10 vznikne jeden z největších ateliérů v Evropě.

Ateliér je vybaven zařízením umožňujícím lokální odvod kouřových zplodin (kouřové efekty, krby, dýmovnice…). Vzduchotechnika v ateliéru umožňuje v krátké době výměnu vzduchu. Pracovní osvětlení zajišťuje pomocí nejmodernějších zdrojů dokonalé podání barev. Vrátky umožňují zavěšování břemen a dekorací - staticky 300 kg, dynamicky 130 kg.

U ateliéru MAX je k dispozici 140 m² veliká cateringová místnost s kapacitou 140 osob.

Unikátní rozebiratelné zvukotěsné stěny umožňují rozdělit celkový vnitřní prostor o délce 98,2 m na tři samostatné ateliéry (ateliéry 8, 9 a 10) či jejich kombinace. Pro technickou manipulaci jsou součástí každého z nich velká vjezdová vrata.

PŮDORYS

Kontaktujte nás


Mgr. Gabriela Kolková

+420 267 073 017
+420 722 971 194
gkolkova@barrandov.cz