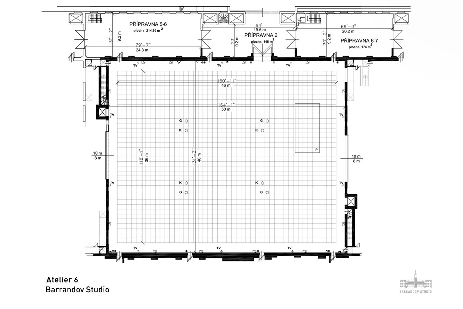
Ateliér 6

Výška

12 m

Celková plocha

40 x 50 m
(2000 m²)

Užitná plocha

36 x 46 m
(1656 m²)

Unikátní výsuvné opony umožňují propojení s ateliéry číslo pět a sedm. Po vysunutí obou opon tak vznikne prostor o délce 130 m.

Součástí zázemí ateliéru jsou velká vjezdová vrata pro technickou manipulaci, dopravu dekorací a vjezd automobilů. Ateliér má také kvalitní technické zázemí (tzv. přípravna) určené zejména pro manipulaci s dekoracemi. Vrátky umožňují zavěšování břemen a dekorací - staticky 300 kg, dynamicky 130 kg.

Nadstandardním prvkem je funkční propadlo – 5 m široké, 10 m dlouhé a 5 m hluboké.

PŮDORYS

Kontaktujte nás


Mgr. Gabriela Kolková

+420 267 073 017
+420 722 971 194
gkolkova@barrandov.cz