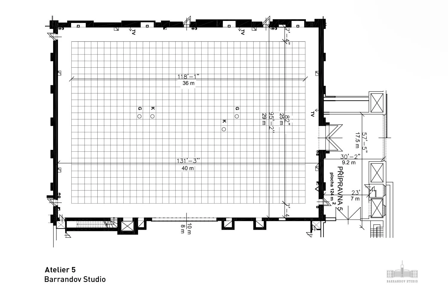
Ateliér 5

Výška

12 m

Celková plocha

29 x 40 m
(1160 m²)

Užitná plocha

25 x 36 m
(900 m²)

Unikátní výsuvná opona umožňuje propojení s ateliérem číslo šest. V případě vysunutí opony, která dále dělí ateliéry šest a sedm, vznikne spojený prostor o délce 130 m. Vrátky umožňují zavěšování břemen a dekorací - staticky 300 kg, dynamicky 130 kg.

Součástí zázemí ateliéru jsou velká vjezdová vrata pro technickou manipulaci, dopravu dekorací a vjezd automobilů. Ateliér má také kvalitní technické zázemí (tzv. přípravna) určené zejména pro manipulaci s dekoracemi.

PŮDORYS

Kontaktujte nás


Mgr. Gabriela Kolková

+420 267 073 017
+420 722 971 194
gkolkova@barrandov.cz